View photo
            
        
    
    Bolton, Bolton Map
...via secure online bidding: terms and conditions apply.* We are pleased to offer to auction this freehold plot of land situated in Lostock, Bolton. Please note we have not inspected this property. through Pattinson Auction under Conditional Terms...
  
    
        
	
        
    
        
    
    
    
    
        
            View photo
            
        
    
    Bolton, Bolton Map
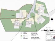
by Modern Method of Auction: Starting Bid Price £375,000 plus Reservation Fee. PLOT, WITH DETAILED PLANNING PERMISSION!We are delighted to market this fabulous development opportunity for two luxury, individually designed five bedroom, five...
  
    
        
	
        
    
    
        
    
    
    
        
            View photo
            
        
    
    Bolton, Bolton Map
...via secure online bidding: terms and conditions apply.* We are pleased to offer to auction this freehold plot of land situated in Lostock, Bolton. Please note we have not inspected this property. through Pattinson Auction under Conditional Terms...
  
    
        
	
        
    
    
        
    
    
    
        
            View photo
            
        
    
    Bolton, Bolton Map
...via secure online bidding: terms and conditions apply.* We are pleased to offer to auction this freehold plot of land situated in Lostock, Bolton. Please note we have not inspected this property. through Pattinson Auction under Conditional Terms...
  
    
        
	
        
    
    
        
    
    
    
        
            View photo
            
        
    
    Bolton, Bolton Map
...pproximately 99 SqM (118 SqYds) comprising an overgrown area of land a dilapidated garage. The land is located in a predominan...n established and popular residential area 2.5 miles north of Bolton. A variety of amenities are available locally and Moss ...
  
    
        
	
        
    
    
        
    
    
    
        
            View photo
            
        
    
    Bolton, Bolton Map
...pproximately 99 SqM (118 SqYds) comprising an overgrown area of land a dilapidated garage. The land is located in a predominan...n established and popular residential area 2.5 miles north of Bolton. A variety of amenities are available locally and Moss ...
  
    
        
	
        
    
    
        
    
    
    
        
            View photo
            
        
    
    Bolton, Bolton Map
by Modern Method of Auction: Starting Bid Price £375,000 plus Reservation Fee. PLOT, WITH DETAILED PLANNING PERMISSION!We are delighted to market this fabulous development opportunity for two luxury, individually designed five bedroom, five...
  
    
        
	
        
    
    
        
    
    
        
            2 pictures
            
        
    
    
    BL6, Bolton Map
...Land Measuring Approximately 328 sq m (3,530 sq ft) TenureFreeholdLocationThe land is situated on a residential road close to local shops and amenities. The open spaces of Ridgmont Park are within easy reach. Transport links are provided by Blackrod...
  
    
        
	
        
    
    
        
    
    
        
            4 pictures
            
        
    
    
    BL6, Bolton Map
...LAND TO THE REAR OF 93 CHURCH STREET, BLACKROD, BOLTON BL6 5EFAn exceptional opportunity to acquire a parcel of land approximately just over 0.5acres. The site previously housed 6 stone terrace houses and there is strong potential for residential dev...
  
    
        
	
        
    
    
        
    
    
        
            10 pictures
            
        
    
    
    BL1, Bolton Map
...Landmark, Create a Legacy - OFFERED FOR SALE VIA MODERN METHOD OF AUCTION, STARTING BID 300,000 PLUS FEESRising above the tranquil stone cottages and wooded valley of Barrow Bridge, this striking Victorian chimney stands as a lone sentinel of Boltons...
  
    
        
	
        
    
    
        
    
    
        
            4 pictures
            
        
    
    
    BL1, Bolton Map
...FABULOUS PLOT OF LAND FOR SALE IN LOSTOCK*Three Building Plots - Planning Approved for Large Detached Dwellings Over 3000 sq f...ng it an ideal investment for developers or self-build buyers.Bolton Council planning application number - 15663/23The curre...
  
    
        
	
        
    
    
        
    
    
        
            3 pictures
            
        
    
    
    BL1, Bolton Map
...land adjacent to 652 Crompton Way, with vehicular access from Watermillock Gardens. This land has previously had a planning application approved for the development of a 3-bedroom detached property (planning reference 79724/08). A brilliant opportuni...
  
    
        
	
        
    
    
        
    
    
        
            2 pictures
            
        
    
    
    BL6, Bolton Map
...Land Measuring Approximately 328 sq m (3,530 sq ft)TenureFreeholdLocationThe land is situated on a residential road close to local shops and amenities. The open spaces of Ridgmont Park are within easy reach. Transport links are provided by Blackrod r...
  
    
        
	
        
    
    
        
    
    
        
            6 pictures
            
        
    
    
    BL1, Bolton Map
...t Templecombe Drive and Belmont Road in the popular BL1 area of Bolton. This site offers outstanding potential for residential...ed in a regeneration hotspot with growing demand Location:The land is located in North Bolton, close to schools, local shops...
  
    
        
	
        
    
    
        
    
    
        
            8 pictures
            
        
    
    
    BL6, Bolton Map
...landscaped grounds, all finished to the most exacting of standards throughout? then this may be the one for you. This is a fantastic opportunity for a purchaser to have a stunning and bespoke luxury home built for them in one of Boltons most prestigi...
  
    
        
	
        
    
    
        
    
    
        
            30 pictures
            
        
    
    
    Rivington
We were fortunate enough to market Hamers Barn around 20 years ago at which time the current owners purchased the property and have subsequently enhanced what was already a tremendous home. It is fair to describe true bungalows as an increasingly...
  
    
        
	
        
    
    
        
    
    
        
            28 pictures
            
        
    
    
    Bolton
...Barrow Bridge Chimney — Own a Landmark, Create a Legacy. OFFERED FOR SALE VIA MODERN METHOD OF AUCTION, STARTING BID £300,000 ... this striking Victorian chimney stands as a lone sentinel of Bolton’s proud industrial past — and now, with full planning p...
  
    
        
	
        
    
    
        
    
    
        
            10 pictures
            
        
    
    
    Over Hulton
...ntial area of Over Hulton approximately 3.5 miles south west of Bolton Town Centre and convenient for all the north. West citi... services along New Brook Road to Bolton, Atherton and Leigh. Land extending to an approx. 20.55 acres of grade 3 agricultur...
  
    
        
	
        
    
        
    
    
    
    
        
            View photo
            
        
    
    Bolton, Bolton Map
...pproximately 99 SqM (118 SqYds) comprising an overgrown area of land a dilapidated garage. The land is located in a predominan...n established and popular residential area 2.5 miles north of Bolton. A variety of amenities are available locally and Moss ...
  
    
        
	
        
    
        
    
    
    
    
        
            View photo
            
        
    
    Bolton, Bolton Map
by Modern Method of Auction: Starting Bid Price £375,000 plus Reservation Fee. PLOT, WITH DETAILED PLANNING PERMISSION!We are delighted to market this fabulous development opportunity for two luxury, individually designed five bedroom, five...