4 pictures
N12, London Map
...es from both West Finchley and Woodside Park Northern Line Underground stations providng quick connections to Central London and across North London.Other loca...ants at Tally Ho Corner (0.2 miles). The property is also in the catchment area fo...
12 pictures
N22, London Map
... on 19th February at 12:00 *Location & DescriptionA mid terrace property comprising a ground floor shop to the front and music...both with a short walk of the property. Also, close by is the North Circular (A406) giving access to the M11 and M25 motorwa...
12 pictures
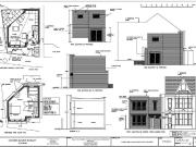
SW9, London Map
...the existing house comprising new dormer windows and a new entrance arrangement. The current side access to the existing property will be reconfigured in accordance with the approved ...ns. Located within easy reach of Brixton Underground, Clapham North...
7 pictures
E4, London Map
...property is located on an established commercial parade on Hall Lane, Chingford, opposite the Corktree Retail Park. Hall Lane leads directly into The North Circular (A406) which provides access to the Motorway Network. Comprising a mixed use property...
12 pictures
SE25, London Map
...A three storey, end of terrace property of traditional construction, with retail on th...d 7.8 miles south-east of Charing Cross, north of Woodside and Addiscombe, east of...ge.South Norwood is referred to as South Londons best-kept secret - a town in easy...
12 pictures
NW10, London Map
... and continually improving the location. The property offers over 1620 sq ft of ground... £50,000.High Road is a main artery into London, on the cusp of North West & West ondon, with plenty of ...
6 pictures
N4, London Map
...ding situated on the lively Blackstock Road, London N4. This versatile property is arrnged over four floors and... a chain-free purchase.Located in one of North Londons most bustling neighbourhood...
3 pictures
CR0, Croydon Map
...Commercial Shell offering the scope to create a Modern build Music Studio and event sp...ject to offer.Located on Parker Road the property is ideally located for amenities...ast Croydon railway station is 0.9 miles north of the property and South Croydon r...
8 pictures
SE20, London Map
...chase the freehold of a mixed-use investment property in a prominent position on Penge...s a prominent mid-parade position at the North end of Penge High Street within theLondon Borough of Bromley. The high stree...
12 pictures
NW2, London Map
...property is situated in a highly prominent location on the North side of the North Circular Road (A406) approx. 0.6miles from junct 1 of the M1 and Edgware Road. There is excellent road communication to and from Central London.ACCOMMODATIONThe buildi...
12 pictures
E1, London Map
...property occupies a prime City fringe position within the London Borough of Tower Hamlets, situated on the south side of Alie Street and the north side of North Tenter Street. This strategic location bridges the dynamic commercial hubs of Aldgate and...
View photo
N6, London Map
...rtunity to purchase this freehold investment property situated on the popular Archway ...rently let, together with a ground floor commercial unit producing £14,000 per ann...oximity to Highgate Underground Station (Northern Line), local bus routes, and a v...
7 pictures
E2, London Map
... with scope for adding value in a prime East London location. This five-story freehold...und-floor units have been converted from commercial use to create five attractive ...e, two and three bedroom apartments. The property is fully let providing a consist...
3 pictures
E16, London Map
...e pleased to offer to auction this freehold piece of land in Beckton, East London, just 5 minutes from London City Airport. This versatil...t us for more details. Please note we have not inspected this property. We are not aware of any associated rights...